1. Immobilier
  2. Achat neuf
  3. Achat Appartement neuf
  4. Achat Appartement neuf PONTCHARRA (38530)

Appartement T2 à vendre 2 pièces - 48,90 m2 PONTCHARRA - 38

Ref : 2750

183 000 €

  • Honoraires charge vendeur
Appartement T2 à vendre - 2 pièces - 48,90 m2 - Pontcharra - 38 - RHONE-ALPES
Appartement T2 à vendre - 2 pièces - 48,90 m2 - Pontcharra - 38 - RHONE-ALPES
Envoyer un message
Message
Envoyer ce bien à un ami

Description

Au coeur de la vallée du Grésivaudan, entre Chambéry et Grenoble,la nouvelle résidence L'Astrée est idéalement située proche des commodités du quotidien.
Le dynamisme soutenu de la ville de Pontcharra, la qualité des dessertes routières et ferroviaires facilitera au quotidien tous vos déplacements privés ou professionnels, tout en bénéficiant sur place d'un choix d'activités et de services variés : collège, lycée, piscine, boulangerie, supermarché, gare, etc.
Cette résidence intimiste composée
de deux bâtiments propose des appartements confortables bénéficiant de généreuses pièces de vie ouvertes, grâce à de larges baies vitrées sur des terrasses ou jardins.
Nous vous proposons des appartements allant du T2 au T4 avec possibilité d'acquisition d'un garage en sus. Contactez un de nos conseillers pour plus d'informations !

Localisation

Laissez-nous vos coordonnées pour obtenir la localisation

Envoyer

Afficher sur la carte :

Demander la localisation

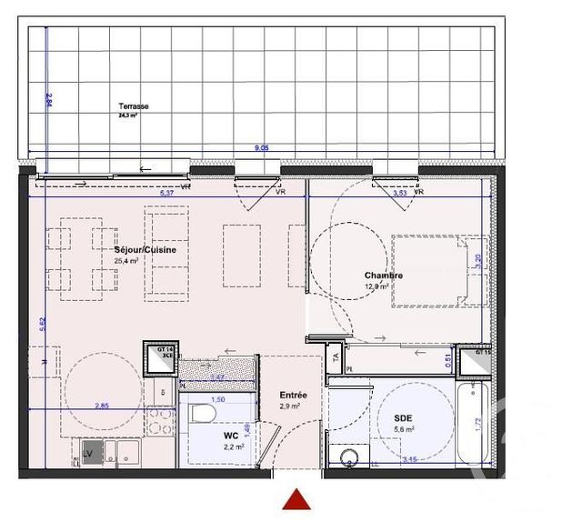
Vue globale

  • Surface totale : 48,9 m2
  • Surface habitable : 48,9 m2
  • Type d'appartement : T2
  • Étage : Rez-de-chaussée
  • Nombre de pièces : 2
    • Entrée (3,7 m2)
    • cuisine / séjour (27,8 m2)
    • Chambre (10,4 m2)
    • Salle d'eau (5,2 m2)
    • WC (2,8 m2)

Équipements

Les plus

Terrasse

Général

  • Chauffage : Individuel radiateur gaz
  • Eau chaude : Chaudière gaz
  • Ascenseur
  • Videophone

À savoir

Copropriété

  • Nombre de Lots : 28
  • Charges courantes par an : 1,0 €
  • Pas de procédure en cours

Les performances énergétiques

Non soumis au DPE

Ce bien est proposé par l'agence CENTURY 21 Immobilière de la Vallée

CENTURY 21 Immobilière de la Vallée

CENTURY 21 Immobilière de la Vallée

116 rue Laurent Gayet

38530 PONTCHARRA

04 80 80 54 10
qualitelis Votre agence est notée
Achat Vente
9,3/10
Location Gestion
9,4/10

Nos offres

Notre agence immobilière à Pontcharra vous propose :

Calculer vos mensualités
de remboursement

Montant du prêt :
Durée du crédit
Taux d'intérêt (hors assurances)

vos mensualités

- € par mois

(Dont -€ d’assurances)

Crédit immobilier simulation
et premiers calculs

vous êtes acquéreur et vendeur,

Vous êtes acquéreur et vendeur, nos agents immobiliers peuvent vous accompagner dans vos projets

Contacter l'agence

Envoyer à un ami

Envoyer

Créer votre alerte

Rappel de vos critères de recherche :

Erreur dans les critères envoyés

Limite d'alertes atteinte

Cette alerte existe déjà

Cette alerte est déjà enregistrée pour cette adresse email. Vous continuerez à recevoir les biens correspondant à vos critères.

Une erreur est survenue

Merci de réessayer ultérieurement.

Votre alerte a été créée

Vous recevrez les biens correspondant à vos critères.

logo vente privées

48h

d’avance sur
le marché

Prenez un temps d’avance sur le marché en profitant gratuitement des Ventes Privées CENTURY 21

Si ce n’est pas déjà fait, créez votre compte client pour recevoir en avant-première des biens exclusifs, réservés à nos clients pendant les 48 premières heures suivant leur commercialisation.

Nos agences proposent régulièrement des biens comme celui que vous cherchez

Ne ratez pas une opportunité, on vous alerte en priorité !

Êtes-vous actuellement propriétaire de votre bien ?
Créer une alerte
Je souhaite être alerté
Voir les biens correspondants

Envoyer un message :

Envoyer